

巴塞罗那气候宜人、风光旖旎、古迹遍布,素有“伊比利亚半岛的明珠”之称,是西班牙最著名的旅游胜地。
今天领航海外带大家去巴塞罗那市中心看一看艾斯古特公寓。

艾斯古特公寓
房产类型:位于巴塞罗那最中心的老楼翻新公寓项目/ 1、2和3居室/ 1或2间浴室/面积:46-143平方米。

室内样图
位置:位于市中心时尚的老城区,周边设有多处博物馆、酒吧、餐馆、商店、购物商场,购物街等
成品:高品质的完成,当代和传统的设计结合,宽敞的客厅,设备齐全的开放式厨房。
售价: 385,000欧元起。
状态:预计在2019年10月交房
总套数:15套

室内样图
房产位置——巴塞罗那 老城哥特区
艾斯古特公寓位于巴塞罗那最市中心古色古香的老城哥特区,周边不仅商业发达,而且附近著名的景点也比较多。

从公寓步行可达海滩,周边围绕着巴塞罗那主教堂、兰布拉步行街,哥伦布雕像、加泰罗尼亚广场、巴塞罗那当代艺术博物馆等著名景点。

对于习惯购物的你来说,一定会非常喜欢这个公寓,因为著名的英格列百货公司和天使门商业街均近在咫尺。这里聚集了各大品牌、时装店、酒吧、餐厅等,数百家商店供您选择。Maremagnum是巴塞罗那市内唯一一家全年365天营业的购物中心,你只需步行10分钟可到达。

兰布拉大道

哥伦布广场

哥特区
艾斯古特公寓与巴塞罗那的主要交通道路和公共交通相距很近,你可以随意选择地铁、公交、火车站、有轨电车等自己喜欢的出行方式
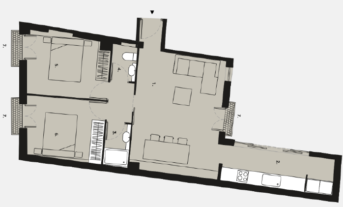
下面领航海外向大家展示一下艾斯古特公寓的户型例图:
房产户型例图— 46平方米— 售价:385,000欧元起
房产户型例图— 74平方米— 售价:545,000欧元起
以上是领航海外在西班牙部分房产投资,如果你想了解更多快速移民项目,详情请咨询领航海外www.leadvisa.com 电话:400-655-9490
扫一扫关注更多移民动态
微信订阅号
微信服务号请将信息填写完整
尊敬的客户您好!
为了更好的为您服务以及为您提供全面详细的项目信息请填写以下信息
尊敬的客户您好!
您提交的信息已经收到,我们会尽快与您取得联系
信息提交失败,请您刷新页面重新提交