

导航
澳大利亚房产投资:顶尖学区房
2019/01/24
珀斯学区房

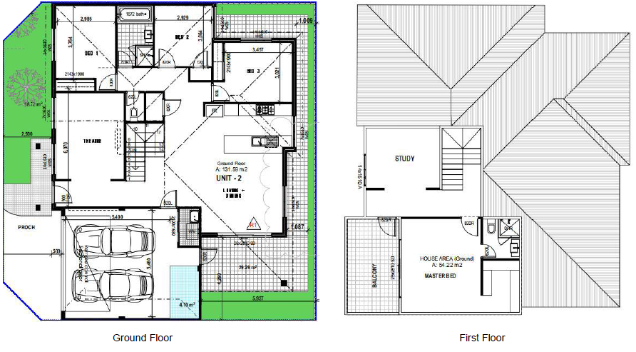
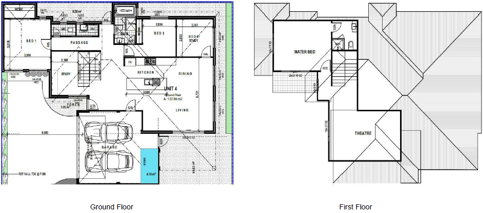
该房产是高端双层别墅,配套设施包含4间卧室,2个卫生间,双车库位以及影音室和书房。
房产设施


房产位置
项目地址:113-115 Barbican Street E Riverton WA 6148


生活在Riverton享受澳洲最好的生活和教育

Riverton是珀斯当地最著名的公立学区之一,该区内有著名的Riverton Primary School和 Rossmoyne Senior High School,这两所学校优异的教学质量和学习环境培养出了很多优秀的学生,很多望子成龙的家庭都趋之若鹜,整个区的居住环境和氛围都非常好。区内还有一条美丽的坎宁河(Canning River),沿河景色别具一格。
Riverton作为珀斯市区内比较成熟和繁荣的区域,交通十分便利,道路四通八达。几条
知名的主路如High Road,Leach High Way以及Roe Highway都经过这个区。该区也因为靠近著名的科廷大学(Curtin University),特别受留学生和留学生家长的欢迎。
Riverton Shopping Center和Stockland Shopping Center两大购物中心,能够满足人们日常的购物需求,还有很多当地的餐厅和传统商店遍布购物区,生活在这里,不会感到寂寞,丰富多彩的社区活动和和睦的社区环境会充实您的每一天。

Riverton Primary School在澳洲权威教育网站评分98分,是珀斯最好的公立小学之一,它为学生提供了广泛的课程和健全的教育设施,学生在这里可以受到全面的教育,也因此收到各界的肯定。
Rossmoyne Senor High School

Rossmoyne初高中是珀斯顶尖的公立学校,有着过硬的师资力量、优秀的学生素质以及优异的升学率,使这几个学校在每一年的西澳学校排行中始终是名列前茅。周边舒适的居住环境和高品质的社区文化而吸引了众多家长的关注,学区房供不应求。

房产户型


请将信息填写完整
尊敬的客户您好!
为了更好的为您服务以及为您提供全面详细的项目信息请填写以下信息
信息提交失败,请您刷新页面重新提交