

导航
德国房产:高档翻新公寓
2020/11/30
位置:柏林最繁华地段,和KaDeWe一箭之遥
建造年限:1895年
完工时间:2019年年底
规模:六层共26套公寓, 43平至203平
特点: 大气舒适Altbau, 全新精装修,带电梯
价格区间:7500欧/平起,新建顶层11000欧/平
服务费:7.14% (含税)
项目位置
该项⽬位于纯正西柏林Charlottenburg夏洛滕堡区,紧邻优雅时尚的购物大街Tauentzienstraße,距离柏林最大商场卡迪威百货KaDeWe仅一个街区。超⼤绿地蒂尔加藤Tiergarten和柏林动物园Zoologischer Garten都位于步⾏可达范围内, 项目附近有众多公交线路通过,生活非常方便。
从项目出⻔即可享受最⾼端舒适的购物环境,一线品牌汇集的卡迪威商场KaDeWe每天有5万来自世界各地的游客来这里购物。
拥有两万种动物的柏林动物园是城市绿肺提尔卡藤的一部分,从项目去动物园步行仅需几分钟。闲暇时带着孩子去动物园或者公园里散步,非常惬意!投资该项目,
成熟的商圈中心,最佳宜居地点——购物,健身, 餐饮,超市,药店,酒店,影院,剧院,动物园,博物馆,集市,公园......便利生活所需的各种设施,一应俱全。
项目基本信息
23套翻新公寓;
3套新建的带露台的现代⻛格屋顶豪华⼤套间Penthouse;
原建于1895年年初,可追溯到德意志帝国时代。现全面翻新,配备高端透明电梯,水电管道及暖气等设施都将达到最新标准;
宽敞的阳台能提供开阔的视野,尽享内庭的花园及最繁华的街道的景致,包括属于受文物保护建筑的Ellington酒店;
三种高端装修风格可供选择: 低调写意 Basic,优雅经典 Classic,潮流都市 Urban
户型举例

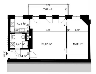
一室一厅, 57.98平,4楼,46.5万欧起
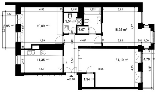
两室一厅,97.64平,4楼,77.1万欧起
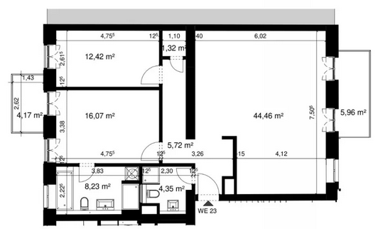
三室一厅,100.28平,4楼,92.7万起
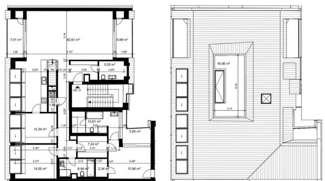
顶层三室两厅带私家露台,两层179平194万欧
领航海外
全球身份规划专家
全球资产配置伙伴
签约一次 服务终生
领航海外只做一件事:提供最专业、最精准的全球身份规划方案,并与全球顶级合作伙伴为您提供最佳的海外资产配置方案。顺利移民后提供终身服务。
免费咨询热线:400-655-9490。
请将信息填写完整
尊敬的客户您好!
为了更好的为您服务以及为您提供全面详细的项目信息请填写以下信息
信息提交失败,请您刷新页面重新提交